Portofino IV 2000
2000 North Waccamaw Drive
Garden City Beach (Horry)
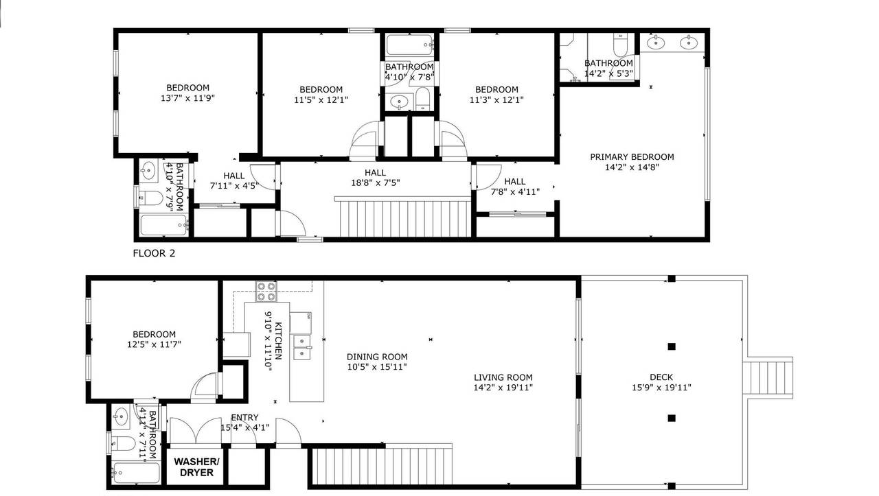
5 Bedrooms
4 Bathrooms
14 Guests
Search Availability
If someone else has already booked the week you wanted, don’t worry just yet… you can fill out the information below to join our waitlist and be notified immediately if it becomes available! Please remember that all bookings are first-come, first-serve, and that returning guests have the first right to re-book the same property for the same week in the following year.
Featured Amenities
- Pool




































































